1-бөлм. бат., 33 м2

Бишкек, 6 к-р, ул. Саякабай Каралаева 13/9 3/3/Куттубаева
$ 52 000
4 554 160 сом
$ 1 576/м2
138 005 сом/м2
Кошулганы: 5 ай мурун Жогору көтөрүлгөнү: 12 саат мурун  3386  35
Сүйлөмдүн түрү
ээсинен
Серия
элитка
Үй
кирпич, 2025 г.
Кабат
7 кабат / 14
Аянты
33 м2, турак жай: 24 м2, ашкана: 12 м2
Жылытуу
газ менен
Абалы
самоотделка (псо)
Сантүйүн
кошулган
Газ
магистралдык
Кирүү эшиги
брондолгон
Шыптын бийиктиги
300 м.
Коопсуздук
домофон, коргоо, видеобайкоо
Башкалар
пластик терезе, ашкана-студия, буручтуу эмес, тынч короо
Титулдук документтер
үлүш келишими

Орточо баа

Кыймылсыз мүлктү салыштыруу үчүн House.kg бөлмөлөрдүн санын, сериясын, жайгашкан жери сыяктуу параметрлерди колдонот. Бул сандар базар баасына дал келбеши мүмкүн, буга көптөгөн факторлор таасир этет. Тагыраак маалымат алуу үчүн, кыймылсыз мүлктүн кесипкөй баасын пайдаланыңыз.

Сатуу, 1-бөлм. бат., элитка, Бишкек, 6 к-р

$ 87 250 $ 1 770/м2 7 641 355 сом 155 017 сом/м2

Сатуучудан сыпаттама

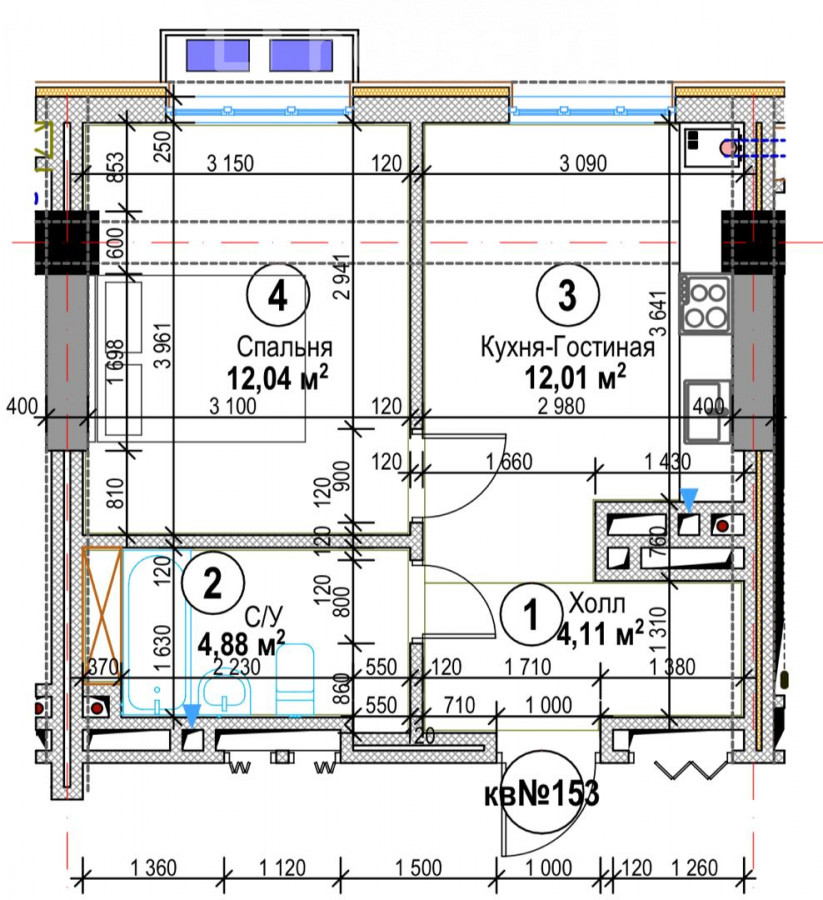
Продается 1 ком. квартира в 6 микр Идеальная локация, самый востребованный район Бишкека. Свежий воздух, развитая инфраструктура. Площадь -33,5 м2 Элитный ЖК Бизнес класса: PrimeCity Этаж: 7/14 — Состояние: ПСО (конец 2025г) Документы: ДДУ (зарегистрирован в ГРС) Коммуникации все центральные: канализация, водоснабжение, электричество, (отопление - газ). Инвестиционно привлекательный объект! Дом кирпичный - это значит, что он теплый и с отличной шумоизоляцией. * Очень удачная планировка квартиры (2-х к. студия: кухня-гостинная, спальня, просторный с/узел и прихожая), см. фото • Потолки - 3м • Панорамные окна • Бесшумные и скоростные лифты (к сдаче ПСО лифт сразу будет работать) Лифты установлены, качественные входные двери стоят. Можно начинать ремонт Детская площадка, паркинг, охрана и видеонаблюдение 24/7 Школы, детские сады, гипермаркеты, и т. д. У дома располагается самый большой ботанический сад нашего города, Река Аламедин, ореховая роща, и др. Цена 52000 $ Цена ниже, чем у застройщика. Звонить 0551504647 с 10.00 до 20.00. Тут бываю редко Собственник, не являюсь риэлтером Агентам не беспокоить!

Которуу

Жарыя картада

Сизге комментарий жазуу үчүн кирүү же катталуу керек