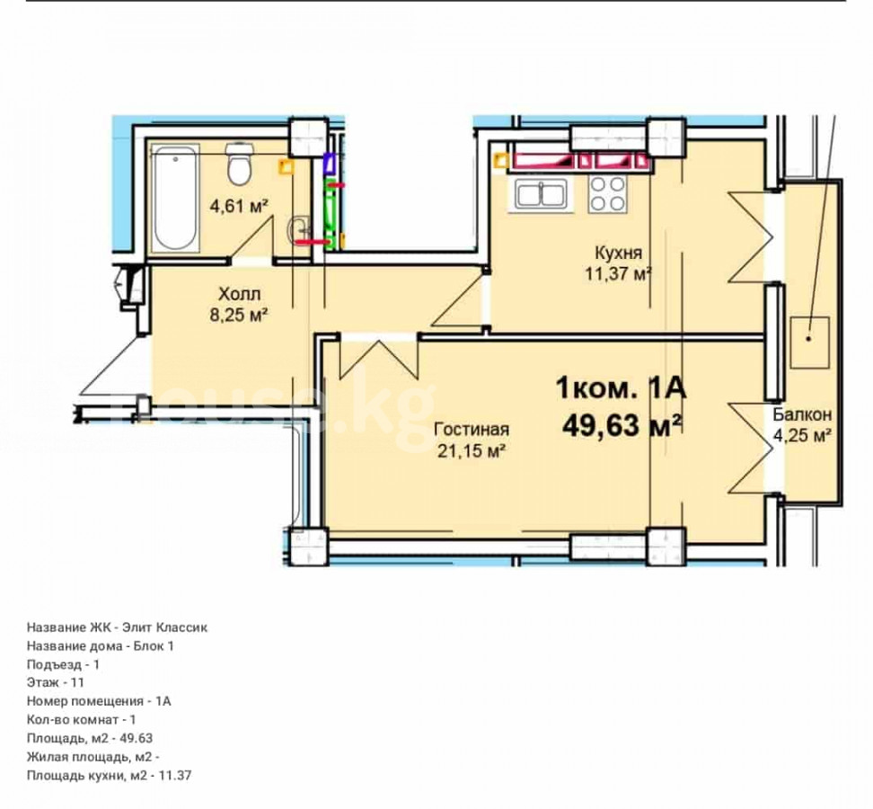
1-бөлм. бат., 49.63 м2

Бишкек, Магистраль, Чуйкова/Коёнкозова
$ 70 000
6 130 600 сом
$ 1 410/м2
123 526 сом/м2
Кошулганы: 2 күн мурун Жогору көтөрүлгөнү: 15 саат мурун  56
Сүйлөмдүн түрү
агенттен
Серия
элитка
Үй
монолиттүү
Кабат
11 кабат / 12
Аянты
49.63 м2
Жылытуу
борбордук
Абалы
курулуп бүтө элек
Шыптын бийиктиги
2.8 м.
Титулдук документтер
үлүш келишими

Орточо баа

Кыймылсыз мүлктү салыштыруу үчүн House.kg бөлмөлөрдүн санын, сериясын, жайгашкан жери сыяктуу параметрлерди колдонот. Бул сандар базар баасына дал келбеши мүмкүн, буга көптөгөн факторлор таасир этет. Тагыраак маалымат алуу үчүн, кыймылсыз мүлктүн кесипкөй баасын пайдаланыңыз.

Сатуу, 1-бөлм. бат., элитка, Бишкек, Магистраль

$ 72 000 $ 1 458/м2 6 305 760 сом 127 692 сом/м2

Сатуучудан сыпаттама

Продаётся 1‑комнатная квартира ЖК Элит Классик, СК Элит Хаус Этаж: 11 из 13 Площадь: 75.88 м² Отопление: газовое 🏗️ Блок 1, 4 квартал 2027 год Цена: 70000 Отличный вариант для комфортной жизни или инвестиций! 0501777915 - Актан ID: 74538

Которуу

Жарыя картада

Сизге комментарий жазуу үчүн кирүү же катталуу керек