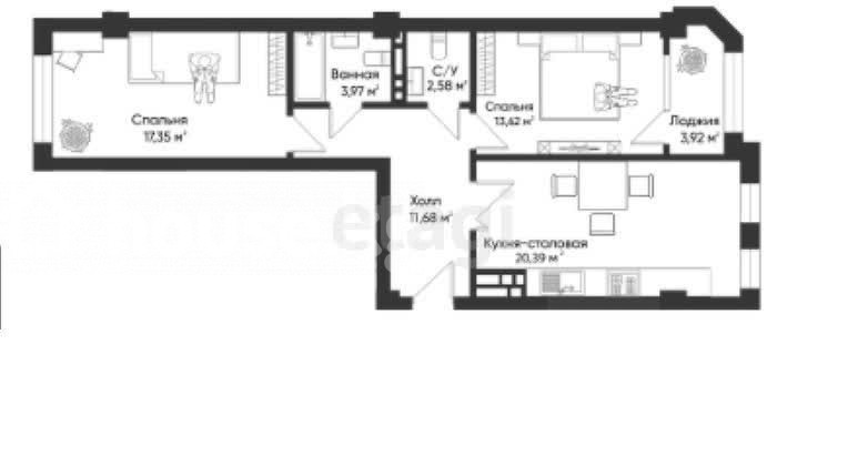
2-бөлм. бат., 74.78 м2

Бишкек, АЮ Гранд, Ауэзова, 5
$ 73 884
6 470 000 сом
$ 988/м2
86 520 сом/м2
Кошулганы: 6 ай мурун Жогору көтөрүлгөнү: 23 саат мурун  1091  2
Сүйлөмдүн түрү
агенттен
Серия
жекече пландоо
Үй
кирпич, 0 г.
Кабат
11 кабат / 15
Аянты
74.78 м2, турак жай: 50 м2
Шыптын бийиктиги
3 м.
Ипотека мүмкүндүгү
бар

Орточо баа

Кыймылсыз мүлктү салыштыруу үчүн House.kg бөлмөлөрдүн санын, сериясын, жайгашкан жери сыяктуу параметрлерди колдонот. Бул сандар базар баасына дал келбеши мүмкүн, буга көптөгөн факторлор таасир этет. Тагыраак маалымат алуу үчүн, кыймылсыз мүлктүн кесипкөй баасын пайдаланыңыз.

Сатуу, 2-бөлм. бат., жекече пландоо, Бишкек, АЮ Гранд

$ 94 308 $ 1 428/м2 8 257 608 сом 125 036 сом/м2

Сатуучудан сыпаттама

Продается 2х комнатная квартира в строящемся Жилом Комплексе Восточный Парк 2 от СК Дельмар Групп. Район мкр Тунгуч по улице Ауэзова пересекает улица Анкара. Сдача ПСО 2й квартал 2026 года. Блок В. Документы Договор Долевого участия, проходит регистрацию в гос регистре. Газовое отопление. Лифты финские фирмы Kone. Красная книга. Закрытый двор, видеонаблюдение. Развитая инфраструктура в шаговой доступности: Школы, детские сады, поликлиника, аптеки, магазины, развлекательные центры и тд. Доп. описание: санузел раздельный, пластиковые окна, в доме есть: детская площадка, закрытый двор, ворота, охрана, наземный паркинг, без лифта, черновая отделка, также имеются: телефон, интернет, кабельное телевидение, счетчики холодной и горячей воды, домофон, железная дверь Номер в базе: 11983308. Район: Октябрьский район

Которуу

Жарыя картада

Комментарий жазуу