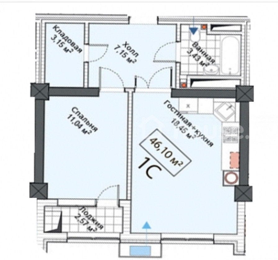
1-бөлм. бат., 46 м2

Бишкек, АЮ Гранд, ул. Анкара 1/31
$ 57 500
5 035 275 сом
$ 1 250/м2
109 463 сом/м2
Кошулганы: 3 ай мурун Жогору көтөрүлгөнү: 48 мүнөт мурун  509  2
Сүйлөмдүн түрү
агенттен
Серия
элитка
Үй
монолиттүү, 2024 г.
Кабат
3 кабат / 9
Аянты
46 м2
Жылытуу
газ менен
Абалы
самоотделка (псо)
Сантүйүн
кошулган
Кирүү эшиги
брондолгон
Титулдук документтер
үлүш келишими

Орточо баа

Кыймылсыз мүлктү салыштыруу үчүн House.kg бөлмөлөрдүн санын, сериясын, жайгашкан жери сыяктуу параметрлерди колдонот. Бул сандар базар баасына дал келбеши мүмкүн, буга көптөгөн факторлор таасир этет. Тагыраак маалымат алуу үчүн, кыймылсыз мүлктүн кесипкөй баасын пайдаланыңыз.

Сатуу, 1-бөлм. бат., элитка, Бишкек, АЮ Гранд

$ 65 500 $ 1 547/м2 5 735 835 сом 135 471 сом/м2

Сатуучудан сыпаттама

Продается 1-комнатная квартира 📍Адрес:Тунгуч 🏗Застройщик : "Борсан " ЖК:Эверест 🏛️Серия: элитка 🏬Этаж/Этажность:3/14 📐Площадь: 46м² ♨️Отопление:газовое 🚪Состояние квартиры: ПСО 🚽Сан узел:совмещённый 📃Документы: ДДУ 💵 Цена:57 500

Которуу

Жарыя картада

Сизге комментарий жазуу үчүн кирүү же катталуу керек