2-бөлм. бат., 48.91 м2

Бишкек, Магистраль, Куттубаева/Южн. Магистраль
$ 59 000
5 167 220 сом
$ 1 206/м2
105 648 сом/м2
Кошулганы: 2 ай мурун  1015  4
Сүйлөмдүн түрү
ээсинен
Серия
элитка
Үй
кирпич, 2026 г.
Кабат
13 кабат / 14
Аянты
48.91 м2
Жылытуу
газ менен
Абалы
самоотделка (псо)
Шыптын бийиктиги
3 м.

Орточо баа

Кыймылсыз мүлктү салыштыруу үчүн House.kg бөлмөлөрдүн санын, сериясын, жайгашкан жери сыяктуу параметрлерди колдонот. Бул сандар базар баасына дал келбеши мүмкүн, буга көптөгөн факторлор таасир этет. Тагыраак маалымат алуу үчүн, кыймылсыз мүлктүн кесипкөй баасын пайдаланыңыз.

Сатуу, 2-бөлм. бат., элитка, Бишкек, Магистраль

$ 120 000 $ 1 650/м2 10 509 600 сом 144 507 сом/м2

Сатуучудан сыпаттама

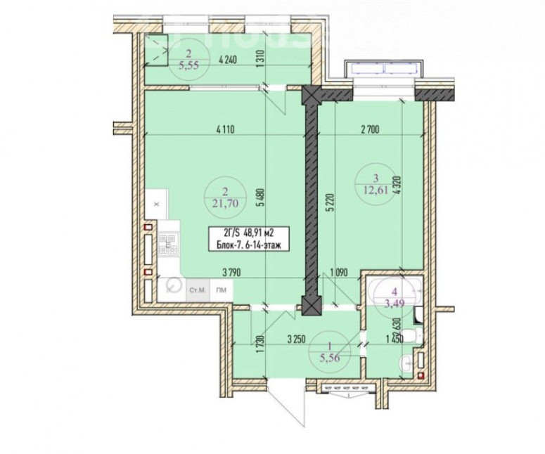
2-комнатная квартира в современном жилом комплексе «Дискавери», Блок 7. Сдача ПСО в 3 квартале 2026 года Планировка и параметры: - Этаж: 13 - Подъезд: 1 - Номер помещения: 2Г/S - Общая площадь: 48,91 м² - Жилая площадь: 34,31 м² - Количество комнат: 2 Состав помещений по плану: - Просторная гостиная 21,70 м² с зоной кухни-ниши - Спальня 12,61 м² - Прихожая 5,56 м² - Санузел 3,49 м² - Лоджия/балкон 5,55 м² Особенности: - Дом повышенной этажности с выразительной архитектурой и вечерной подсветкой фасадов - Продуманная планировка: изолированная спальня, большая жилая зона, функциональная прихожая - Окна на тихий двор, в квартире предусмотрено место для кухонного гарнитура и техники - Лоджия для дополнительного хранения или зоны отдыха ЖК: - Современные корпуса с аккуратными входными группами и благоустроенной придомовой территорией - Уличное освещение, озеленение, пешеходные дорожки - Парковочные места вдоль периметра комплекса

Которуу

Жарыя картада

Сизге комментарий жазуу үчүн кирүү же катталуу керек