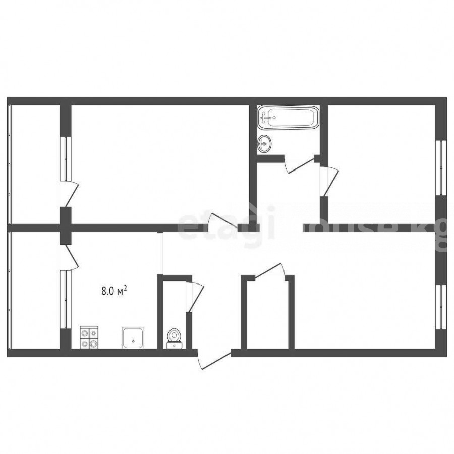
3-бөлм. бат., 72 м2

Бишкек, 12 к-р, 12-й микрорайон, 62
$ 131 309
11 500 000 сом
$ 1 824/м2
159 722 сом/м2
Кошулганы: 3 ай мурун Жогору көтөрүлгөнү: 19 саат мурун  527
Сүйлөмдүн түрү
агенттен
Серия
106 серия
Үй
панелдик, 1990 г.
Кабат
8 кабат / 9
Аянты
72 м2, турак жай: 42 м2
Шыптын бийиктиги
2.8 м.
Ипотека мүмкүндүгү
бар

Орточо баа

Кыймылсыз мүлктү салыштыруу үчүн House.kg бөлмөлөрдүн санын, сериясын, жайгашкан жери сыяктуу параметрлерди колдонот. Бул сандар базар баасына дал келбеши мүмкүн, буга көптөгөн факторлор таасир этет. Тагыраак маалымат алуу үчүн, кыймылсыз мүлктүн кесипкөй баасын пайдаланыңыз.

Сатуу, 3-бөлм. бат., 106 серия, Бишкек, 12 к-р

$ 124 000 $ 1 785/м2 10 859 920 сом 156 330 сом/м2

Сатуучудан сыпаттама

Продается трехкомнатная квартира 106 серии в одном из самых востребованных районов Бишкека — 12-м микрорайоне. Квартира продается полностью с ремонтом, остается абсолютно все, включая мебель и технику. Это идеальное предложение формата заезжай и живи. Квартира очень теплая и уютная. Все коммуникации централизованные: отопление, газ, свет и канализация. Дом отличается высоким уровнем благоустройства и безопасности благодаря активной работе ТСЖ. Двор очень чистый и ухоженный. Обеспечена парковка с достаточным количеством мест для автомобилей. Установлено круглосуточное видеонаблюдение 24/7, что гарантирует безопасность жильцов. В шаговой доступности находится абсолютно все, что нужно для комфортной жизни: школы, магазины, детские площадки, футбольное поле и стадион. Рядом расположены крупные супермаркеты — Азия, Глобус, Достор, а также отделения банков и другие сервисы. Главное преимущество района — чистый экологический воздух, который важен для здоровья вашей семьи и родителей. Квартира полностью готова к сделке. Рассматривается возможность приобретения через ипотеку. Доп. описание: санузел раздельный, пластиковые окна, в доме есть: детская площадка, закрытый двор, видеонаблюдение, наземный паркинг, без лифта, современный ремонт, также имеются: телефон, интернет, кабельное телевидение, счетчики холодной и горячей воды, домофон, железная дверь Номер в базе: 12075583. Район: Октябрьский район

Которуу

Жарыя картада

Комментарий жазуу