Отчёт из Кадастра

Коммерческая недвижимость, 230.4 м2

Бишкек, Аламединский рынок, Рыбинский пер.
$ 291 424
25 520 000 сом
$ 1 265/м2
110 764 сом/м2
Добавлено 9 месяцев назад Поднято 6 часов назад  1659  2
Тип предложения
от агента
Этаж
2 этаж из 2
Площадь
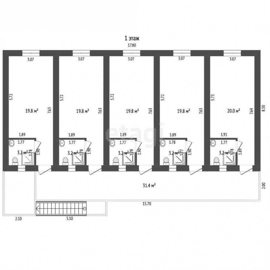
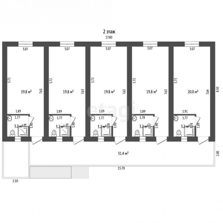
230.4 м2, жилая
Площадь участка
2.304 сотки
Высота потолков
3 м.
Возможность ипотеки
нет

Средняя цена

Для сравнения недвижимости House.kg использует такие параметры как комнатность, серия, район расположения. Эти цифры могут не совпадать с рыночной ценой, на которую влияет множество факторов. Для получения более точных данных воспользуйтесь профессиональной оценкой недвижимости.

Продажа, коммерческая недвижимость, Бишкек, Аламединский рынок

$ 127 500 $ 1 049/м2 11 165 175 сом 91 861 сом/м2

Описание от продавца

Продается готовый бизнес с хорошим доходом.Гостиница расположена по первой линии в тихом районе.Отличное расположение делает обьект привлекательным как для туристов,так и для деловых гостей.Бизнес-гостиница расположена в удобном районе с развитой инфракструктурой,в шаговой доступности магазины,базар,школа,детские учреждения.Хорошая транспортная доступность,рядом остановки общественного транспорта,удобные выезды на основные магистрали.Высокий арендный потенциал круглый год. Доп. описание: также имеются: охрана, приборы учета воды, тепла Номер в базе: 11870344. Район: Свердловский район

Справки из Кадастра:

р-н Свердловский, г. Бишкек, пер. Рыбинский

Закажите проверку юристом:

Объявление на карте

Написать комментарий