Отчёт из Кадастра

House, 6 and more комнат, 220 sq. m

Bishkek, Elebesova - Fere (Tur Baza), Фирсова
$ 381 822
33 440 000 som
$ 1 736/sq. m
152 000 som/sq. m
Added 1 year ago Moved up 23 minutes ago  2555
Type of offer
from agent
Category
individual layout
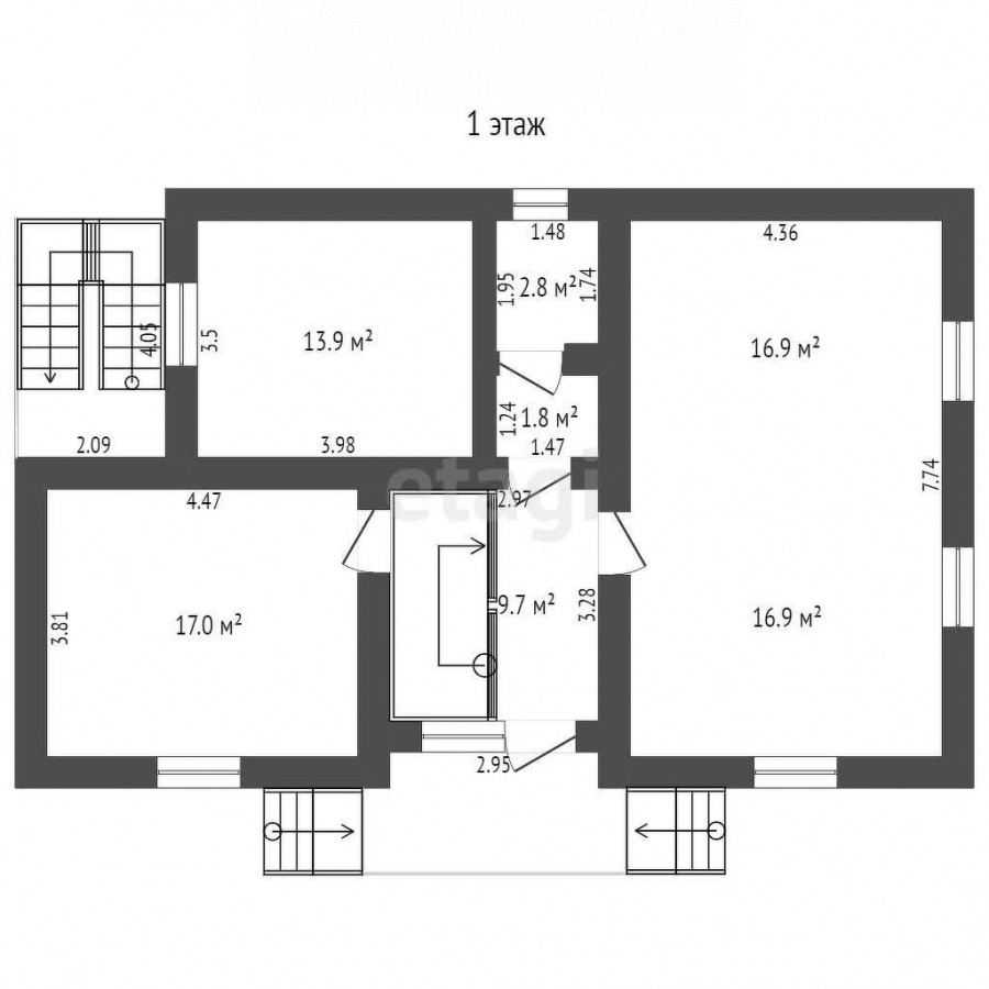
Number of floors
2
Area
220 sq. m, living: 220 sq. m
Land plot area
7 ares
Possibility of getting a mortgage
available

Description from the seller

Продается просторный частный дом, расположенный в живописном и тихом районе. Дом выполнен в классическом стиле, с качественной отделкой и продуманной планировкой. На террасе, утопающей в зелени, приятно отдыхать с книгой или устраивать семейные пикники. Здесь также есть место для детской игровой зоны, где малыши могут играть на траве или кататься на качелях. Всего в нескольких минутах ходьбы находятся детский сад и школа. Рядом расположены уютные кафе, магазины и небольшие супермаркеты. Доп. описание: отопление: центральное, канализация: центральная, также имеются: телефон, интернет, кабельное телевидение, кондиционер, воздушные фильтры, фильтры для воды, бассейн, котельная, камин, погреб, подвал, цокольный этаж, сауна Номер в базе: 11638158. Район: Свердловский район

Translate

Cadastre certificates:

г. Бишкек, р-н Свердловский, ул. Фирсова

Order a check by a lawyer:

Real estate on the map

Leave a comment