3-бөлм. бат., 81 м2

Бишкек, Ден Сяопина - Фучика, Кайназарова / Профсоюзная
$ 76 500
6 702 165 сом
$ 944/м2
82 743 сом/м2
Кошулганы: 3 ай мурун Жогору көтөрүлгөнү: 17 саат мурун  516  1
Сүйлөмдүн түрү
агенттен
Серия
жекече пландоо
Үй
монолиттүү, 2024 г.
Кабат
8 кабат / 9
Аянты
81 м2
Жылытуу
газ менен
Абалы
самоотделка (псо)

Орточо баа

Кыймылсыз мүлктү салыштыруу үчүн House.kg бөлмөлөрдүн санын, сериясын, жайгашкан жери сыяктуу параметрлерди колдонот. Бул сандар базар баасына дал келбеши мүмкүн, буга көптөгөн факторлор таасир этет. Тагыраак маалымат алуу үчүн, кыймылсыз мүлктүн кесипкөй баасын пайдаланыңыз.

Сатуу, 3-бөлм. бат., жекече пландоо, Бишкек, Ден Сяопина - Фучика

$ 70 999 $ 1 008/м2 6 220 222 сом 88 311 сом/м2

Сатуучудан сыпаттама

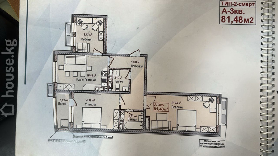
Продается просторная 3‑комнатная квартира в ЖК «Кудайберген» 📐 Площадь: 81,48 м² Застройщик : Доолот курулуш - Планировка: три изолированные комнаты, кухня‑гостиная, два санузла, гардеробные/ниши для хранения, продуманные коридоры - Отделка: с ремонтом «под ключ» - Срок сдачи: 3 квартал 2026 г. - 📍Локация комплекса: район пересечения ул. Ден Сяопина и Фучика - 💵Цена: 76 500 $ Жилой комплекс «Кудайберген» — современный квартал из нескольких среднеэтажных корпусов с закрытыми дворами и внутренней инфраструктурой. Квартира с удобной функциональной планировкой. Отличный выбор для семьи, кому важны метраж, комфорт и готовая отделка. Подробнее : 📞 0552 256 565 📞 0509 887 881

Которуу

Жарыя картада

Сизге комментарий жазуу үчүн кирүү же катталуу керек