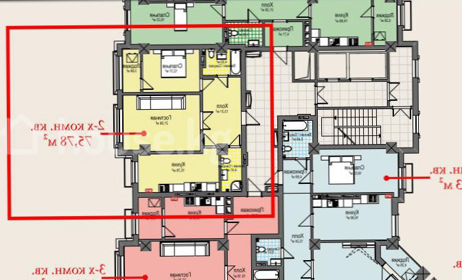
2-комн. кв., 75.78 м2

Бишкек, Магистраль, ДУЙШЕЕВА/МОЛДОБАСАНОВА (НАПРОТИВ ШК.ГАЗПРОМ)
$ 108 000
9 457 560 сом
$ 1 425/м2
124 803 сом/м2
Добавлено 2 месяца назад Поднято 7 часов назад  593  1
Тип предложения
от агента
Серия
элитка
Дом
монолитный, 2026 г.
Этаж
13 этаж из 15
Площадь
75.78 м2
Отопление
центральное
Состояние
под самоотделку (псо)

Средняя цена

Для сравнения недвижимости House.kg использует такие параметры как комнатность, серия, район расположения. Эти цифры могут не совпадать с рыночной ценой, на которую влияет множество факторов. Для получения более точных данных воспользуйтесь профессиональной оценкой недвижимости.

Продажа, 2-комн. кв., элитка, Бишкек, Магистраль

$ 115 000 $ 1 625/м2 10 070 550 сом 142 301 сом/м2

Описание от продавца

Продаётся 2-комнатная квартира — ЖК «Европа», мкр. Асанбай (Токомбаева / Сухэ-Батора) Отличный вариант под самоделку в престижном районе города. Таких квартир у застройщика уже нет. Характеристики: • Площадь: 75,78 м² • Этаж: 14 / 15 • Состояние: строящийся, ПСО (сдача 2027) • Тип недвижимости: элитка • Застройщик: Авангард Стиль Коммуникации: • Все центральные • Газовое отопление Преимущества: • Просторная планировка • Высокий этаж с отличным видом • Перспективный район • Отлично подойдёт для инвестиций Документы: • Красная книга Район: Асанбай — один из самых престижных районов города. Рядом: школа Газпром, ЖК Французский квартал, Белгравия, Tommy Mall, Globus, удобная транспортная развязка. Цена: $108 000 (~9 600 000 сом) Эльдан Кыргыз Недвижимость ID: 84116

Объявление на карте

Вам нужно войти или зарегистрироваться, чтобы написать комментарий