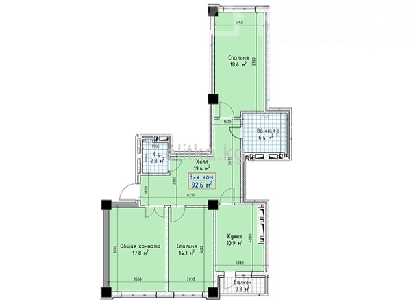
3-бөлм. бат., 92.6 м2

Бишкек, Горького - Алма-Атинская, Горького/ Алма-Атинская
$ 101 860
8 916 824 сом
$ 1 100/м2
96 294 сом/м2
Кошулганы: 3 ай мурун Жогору көтөрүлгөнү: 4 саат мурун  925  1
Сүйлөмдүн түрү
агенттен
Серия
элитка
Үй
монолиттүү, 2025 г.
Кабат
7 кабат / 12
Аянты
92.6 м2
Жылытуу
борбордук
Абалы
самоотделка (псо)
Коопсуздук
коргоо, видеобайкоо
Башкалар
тынч короо
Титулдук документтер
үлүш келишими, кызыл китеп
Мөөнөтүн узартуу мүмкүндүгү
жок
Ипотека мүмкүндүгү
жок
Алмашуу мүмкүндүгү
вариантарды карап көрөм

Орточо баа

Кыймылсыз мүлктү салыштыруу үчүн House.kg бөлмөлөрдүн санын, сериясын, жайгашкан жери сыяктуу параметрлерди колдонот. Бул сандар базар баасына дал келбеши мүмкүн, буга көптөгөн факторлор таасир этет. Тагыраак маалымат алуу үчүн, кыймылсыз мүлктүн кесипкөй баасын пайдаланыңыз.

Сатуу, 3-бөлм. бат., элитка, Бишкек, Горького - Алма-Атинская

$ 104 055 $ 1 236/м2 9 108 975 сом 108 199 сом/м2

Сатуучудан сыпаттама

Продается 3-комн. квартира ЖК «Эмель» от строительной компании «Амир Строй» 92,6 кв. м2. На ул. 7-апреля/горького Этаж: 7 из 14 Отопление центральное - Дом полностью кирпичный. - Фасад - керамогранит. - Охрана и видеонаблюдение 24/7. - Подземный паркинг. - Детская площадка,озеление, тротуары. Документы ДДУ, красная книга Сдача под ПСО 1-квартал 2026 года Цена: 1100$ за кв.м

Которуу

Жарыя картада

Сизге комментарий жазуу үчүн кирүү же катталуу керек