Отчёт из Кадастра

2-бөлм. бат., 76 м2

Бишкек, Алтын аянт, Орозбекова 23/Московская
$ 159 600
13 976 172 сом
$ 2 100/м2
183 897 сом/м2
Кошулганы: 2 ай мурун Жогору көтөрүлгөнү: 22 саат мурун  707  1
Сүйлөмдүн түрү
агенттен
Серия
элитка
Үй
монолиттүү, 2026 г.
Кабат
8 кабат / 14
Аянты
76 м2, турак жай: 38 м2, ашкана: 15 м2
Жылытуу
борбордук
Абалы
самоотделка (псо)
Интернет
зым
Сантүйүн
2 с/у жана андан ашык
Газ
магистралдык
Балкон
балкон
Кирүү эшиги
брондолгон
Унаа токтотуу жайы
паркинг
Шыптын бийиктиги
3.3 м.
Титулдук документтер
үлүш келишими, кызыл китеп
Мөөнөтүн узартуу мүмкүндүгү
жок
Ипотека мүмкүндүгү
бар
Алмашуу мүмкүндүгү
алмашуу сунушталбайт

Орточо баа

Кыймылсыз мүлктү салыштыруу үчүн House.kg бөлмөлөрдүн санын, сериясын, жайгашкан жери сыяктуу параметрлерди колдонот. Бул сандар базар баасына дал келбеши мүмкүн, буга көптөгөн факторлор таасир этет. Тагыраак маалымат алуу үчүн, кыймылсыз мүлктүн кесипкөй баасын пайдаланыңыз.

Сатуу, 2-бөлм. бат., элитка, Бишкек, Алтын аянт

$ 167 338 $ 2 234/м2 14 653 789 сом 195 631 сом/м2

Сатуучудан сыпаттама

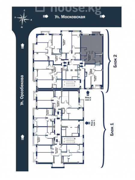
Продается шикарная и уникальная 2-комнатная квартира премиум класса в сердце золотого квадрата. Строительная компания «Найс Хаус» Жилой Дом «PRESTIGE» Блок №2 В пешей доступности все объекты инфраструктуры: Бульвар Эркиндик, школы №6, 24, садики, ЦСМ, гипермаркеты и кафе. Параметры: • комнаты: 2 (студия) • площадь: 76 кв.м Общая площадь квартиры. 76,05м2 Холл - 11,60 м2 Ванная комната - 7,06 м2 Уборная - 3,03 м2 Кухня/гостинная - 26,76 м2 Балкон - 2,67 м2 Спальная комната - 19,30 м2 Гардероб - 5,63 м2 • серия: Элитка, Премиум-класс • материал стен: жжёный кирпич • состояние: черновое • этаж: 8/14 • район: Московская/Орозбекова • коммуникации: центральные. Центральное отопление, Газ магистральный • документы: Предварительный договор купли/продажи через нотариус и регистрация в гос.регистре, земля на красной книге. • цена: 2100$ за м2 (159600$) Окончательно Сдача ПСО 2-квартал 2026г. Отдел продаж: Орозбекова, 21 (ориентир кафе Олива) Nice House - обрети мечту вместе с нами!

Которуу

Кадастрдан күбөлүктөрү:

г. Бишкек, р-н Первомайский, ул. Орозбекова, д. 23.

Юристтин кароосуна буйрук бериңиз:

Жарыя картада

Сизге комментарий жазуу үчүн кирүү же катталуу керек