Отчёт из Кадастра

Коммерческая недвижимость, 163.9 м2

Бишкек, Кулатова- Матросова, Кулатова
$ 90 432
7 920 000 сом
$ 552/м2
48 322 сом/м2
Добавлено 8 месяцев назад Поднято 12 часов назад  1751  10
Тип предложения
от агента
Этаж
1 этаж из 2
Площадь
163.9 м2, жилая
Площадь участка
1.639 сотка
Высота потолков
2.7 м.
Возможность ипотеки
нет

Средняя цена

Для сравнения недвижимости House.kg использует такие параметры как комнатность, серия, район расположения. Эти цифры могут не совпадать с рыночной ценой, на которую влияет множество факторов. Для получения более точных данных воспользуйтесь профессиональной оценкой недвижимости.

Продажа, коммерческая недвижимость, Бишкек, Кулатова- Матросова

$ 412 390 $ 1 624/м2 36 117 116 сом 142 230 сом/м2

Описание от продавца

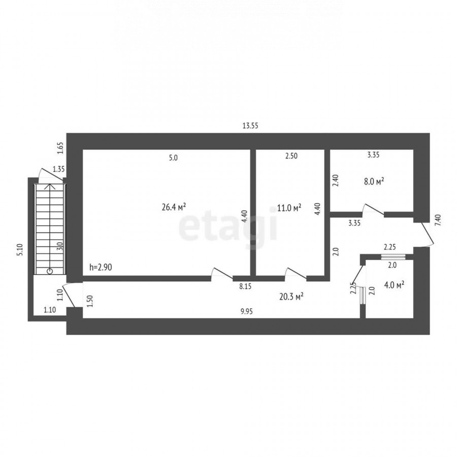
Продается коммерческое помещение на первом этаже, первая линия, объект расположен в центре строительного рынка «На Матросова», в районе ул. Кулатова и ул. Матросова. Отлично подойдет в качестве офиса, торгового или производственного помещения. Рядом расположено большое количество производственных, торговых и других компаний, предоставляющих услуги по строительству, ремонту и поставкам различного оборудования, что делает данную локацию очень актуальной и популярной. Помещение состоит из: 1. Коридор – 20.3 м2 2. Склад – 26.4 м2 3. Склад – 11 м2 4. Склад – 1 м2 5. Подсобное помещение – 4 м2 6. Подсобное помещение – 1.5 м2 7. Кладовая 2.1 – м2 8. Кабинет – 39 м2 9. Кабинет – 22.5 м2 Записывайтесь на показы! Доп. описание: обычное состояние, также имеются: телефон, охрана, приборы учета воды, тепла Номер в базе: 9861328. Район: Октябрьский район

Справки из Кадастра:

г. Бишкек, р-н Октябрьский, ул. Кулатова, д. 2/7

Закажите проверку юристом:

Объявление на карте

Написать комментарий