Отчёт из Кадастра

Коммерческая недвижимость, 95 м2

Бишкек, 8 м-н, Жукеева-Пудовкина
$ 190 683
16 700 000 сом
$ 2 007/м2
175 789 сом/м2
Добавлено 8 месяцев назад Поднято 6 часов назад  2408  9
Тип предложения
от агента
Этаж
3 этаж из 15
Площадь
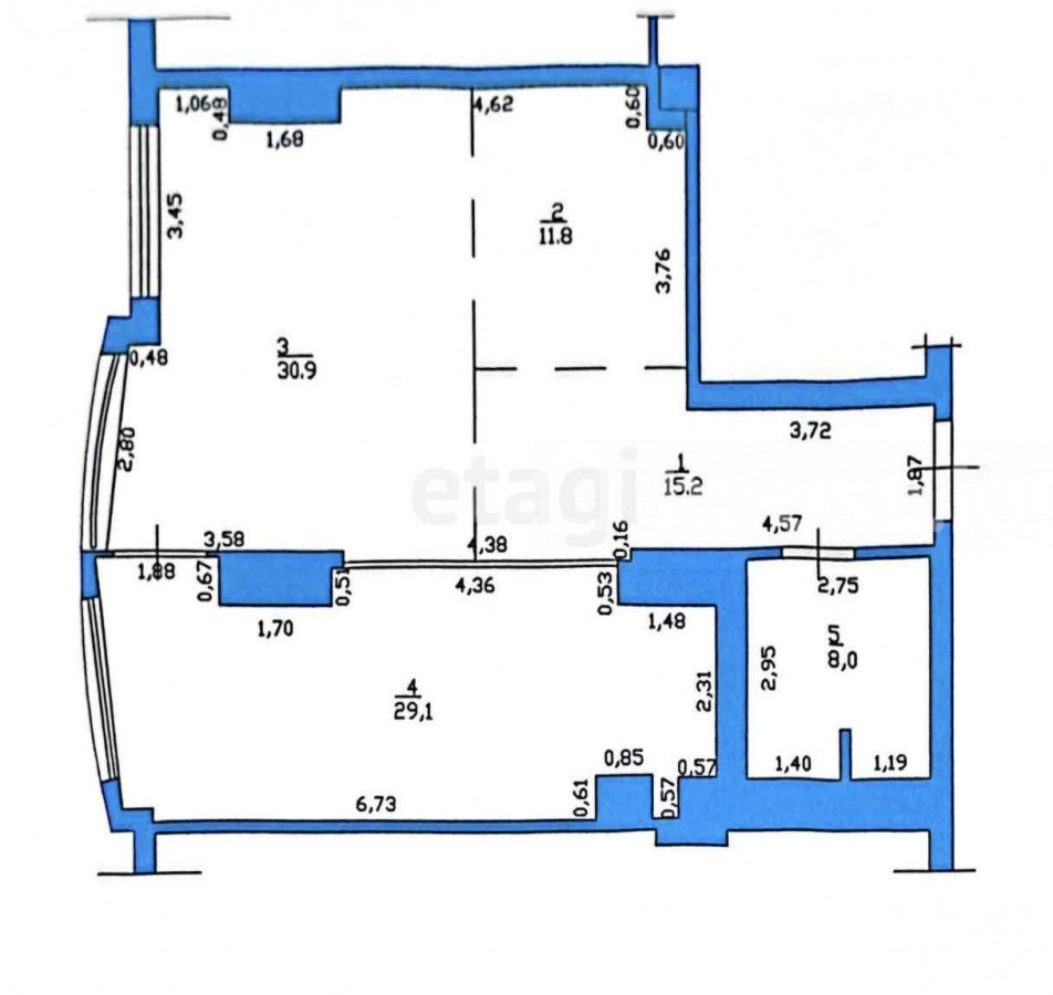
95 м2, жилая
Площадь участка
0.95
Высота потолков
3 м.
Возможность ипотеки
нет

Средняя цена

Для сравнения недвижимости House.kg использует такие параметры как комнатность, серия, район расположения. Эти цифры могут не совпадать с рыночной ценой, на которую влияет множество факторов. Для получения более точных данных воспользуйтесь профессиональной оценкой недвижимости.

Продажа, коммерческая недвижимость, Бишкек, 8 м-н

$ 365 248 $ 2 617/м2 31 988 420 сом 229 197 сом/м2

Описание от продавца

Продается офисное помещение в южной части города. Расположена в жилом доме на третьем этаже. Подойдет для многих видов деятельности связанных с офисной работой. Ремонт не требующий вложений. На этаже находятся только офисные помещения. Имеется собственная кухня, санузел с душем и индивидуальным электрическим отоплением. Водонагреватель на 100 литров. Для резидентов офиса есть доступ к сопртивному залу World class на специальных условиях. Документы в порядке и готовы к оформлению. Покажу через час после звонка! Доп. описание: современный ремонт Номер в базе: 12026136. Район: Октябрьский район

Справки из Кадастра:

г. Бишкек, р-н Октябрьский, ул. Жукеева-Пудовкина

Закажите проверку юристом:

Объявление на карте

Написать комментарий