3-комн. кв., 94 м2

Бишкек, Магистраль, Байтик Баатыра/Токомбаева
$ 98 500
8 612 840 сом
$ 1 048/м2
91 626 сом/м2
Добавлено 7 часов назад  15
Тип предложения
от агента
Серия
элитка
Дом
монолитный, 2024 г.
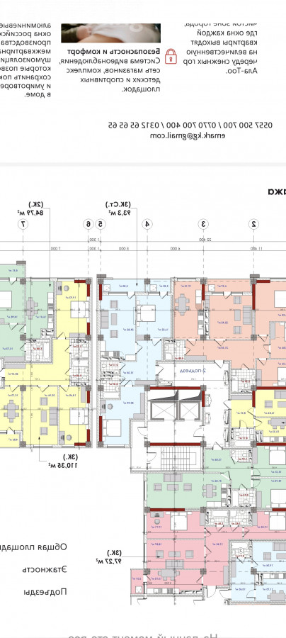
Этаж
14 этаж из 16
Площадь
94 м2
Отопление
на газе
Состояние
под самоотделку (псо)
Высота потолков
3 м.
Правоустанавливающие документы
договор долевого участия

Средняя цена

Для сравнения недвижимости House.kg использует такие параметры как комнатность, серия, район расположения. Эти цифры могут не совпадать с рыночной ценой, на которую влияет множество факторов. Для получения более точных данных воспользуйтесь профессиональной оценкой недвижимости.

Продажа, 3-комн. кв., элитка, Бишкек, Магистраль

$ 165 000 $ 1 600/м2 14 434 200 сом 139 968 сом/м2

Описание от продавца

3-комнатная студийная квартира в ЖК «Крейсер» от Эмарк Групп Большая площадь и свободная планировка — идеальный вариант для создания квартиры под себя. Дом сдан, можно сразу начинать ремонт. Характеристики: Количество комнат: 3 (студийная планировка) Площадь: 93,3 м² Этаж: 14 из 16 Состояние: ПСО Застройщик: Эмарк Групп Дом сдан Документы: ДДУ заверен С документами всё в порядке 💰 Цена: 98 500 $ Айжана

Объявление на карте

Вам нужно войти или зарегистрироваться, чтобы написать комментарий