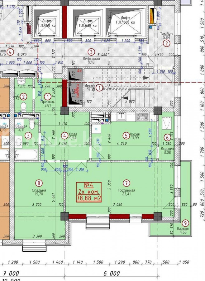
2-комн. кв., 79 м2

Бишкек, Горького - Панфилова, ул.Каракульская 1 (Бот.сад)
$ 114 000
9 982 980 сом
$ 1 443/м2
126 367 сом/м2
Добавлено 2 месяца назад Поднято 18 часов назад  406  1
Тип предложения
от агента
Серия
элитка
Дом
монолитный, 2026 г.
Этаж
16 этаж из 17
Площадь
79 м2
Отопление
центральное
Состояние
под самоотделку (псо)
Санузел
2 с/у и более
Газ
магистральный
Балкон
застекленный балкон
Правоустанавливающие документы
договор долевого участия

Средняя цена

Для сравнения недвижимости House.kg использует такие параметры как комнатность, серия, район расположения. Эти цифры могут не совпадать с рыночной ценой, на которую влияет множество факторов. Для получения более точных данных воспользуйтесь профессиональной оценкой недвижимости.

Продажа, 2-комн. кв., элитка, Бишкек, Горького - Панфилова

$ 122 140 $ 1 590/м2 10 695 800 сом 139 236 сом/м2

Описание от продавца

🏡 Продаётся 2 комнатная квартира в ЖК «ЭКОКОМПЛЕКС» от строительной компании «O2» Этаж:16/17 Площадь:78.88 кв м Цена :1450$🔥🔥(застройщик по 1600 продает) Коммуникации все центральные Окна смотрят на горы и на бот сад Сдача ПСО 2 квартал 2026год Кыргыз Недвижимость Цена 114000$ 0707-99-34-99 Айданбек ID: 71880 Кыргыз Недвижимость

Объявление на карте

Вам нужно войти или зарегистрироваться, чтобы написать комментарий