Экспертное агентство «Кыргыз Недвижимость».
За 8 лет в сфере недвижимости мы набрались колоссального опыта и готовы делиться с вами!
Мы собрали в одном месте лучших экспертов рынка, чтобы предложить клиентам лучшее – глубокие познания рынка, профессиональные рекомендации и самые выгодные предложения по продаже и покупке квартир!
Более 1000 довольных клиентов!
Реализовано порядка 75000 квадратных метров!
Мы за открытость и прозрачность в сделках!
Предоставляем большой спектр услуг:
*помощь в реализации недвижимости (квартира, дом, участок, коммерческое помещение)
*помощь в приобретении недвижимости (квартира, дом, участок, коммерческое помещение)
*юридическое сопровождение
*квартиры от надежных застройщиков без переплат
*бесплатная консультация

Читать полностьюСкрыть
Цена от
Цена до
Высота потолков от, м
Высота потолков до, м
Общая площадь от, м2
Общая площадь до, м2
Жилая площадь от, м2
Жилая площадь до, м2
Площадь кухни от, м2
Площадь кухни до, м2
Год постройки от
Год постройки до
Площадь участка от, соток
Площадь участка до, соток

3-комн. кв., 99 м2, 12 этаж из 17

Жилой комплекс BROOKLYN (Бруклин)

Бишкек, Советская - Скрябина, Медерова 44/2 / Жукеева-Пудовкина
$ 157 000
13 750 060 сом
$ 1 586/м2
138 889 сом/м2
Продается 3-комнатная квартира в ЖК BROOKLYN, Бишкек Этаж: 12 из 17 Площадь: 99 м² Состояние: сдан ПСО (под самоотделку) Дом: монолитный, 2025 года постройки Потолки: 3 м Отопление: газовое (магистраль) Санузел: раздельный Балкон: есть Мебель: отсутствует Документы: ДДУ, Красная книга ...
17 часов назад  181

Участок, 8 соток

с. Кашка-Суу, Медерова
$ 235 859
20 656 500 сом
$ 29 482/сотка
2 582 063 сом/сотка
🚨 СРОЧНО продается участок с домом! 📍 Район: Кашка-Суу 📐 Участок угловой, правильной формы 🚗 Заезд с двух сторон 🛣 Асфальтированная дорога 🔌 Коммуникации: свет, 3-х фазное электричество, вода, поливная вода 🅿️ Есть место для парковки 🌳 Участок подходит для озеленения и благоустройства 💵 Ц...
17 часов назад  830

3-комн. кв., 77 м2, 5 этаж из 14

ЖК ПИШПЕК

Бишкек, Пишпек ж/м, ул. Льва Толстого - Крылова
$ 105 378
9 229 000 сом
$ 1 369/м2
119 857 сом/м2
🏠 Продаётся евротрёшка с дизайнерским ремонтом в ЖК “Пишпек”! • 📐 Площадь: 77 м², 4/12 этаж • 🛋️ Состояние: заходи и живи, мастер-спальня с собственным санузлом, тёплые полы в санузлах • 🔥 Коммуникации: газовое автономное отопление, центральные вода и канализация • 🚪 Удобства: двери через Face I...
17 часов назад  608  2

Дом, 3-комн., 90 м2, 4 сотки

Бишкек, Ак-Ордо 3 ж/м
$ 85 000
7 444 300 сом
$ 944/м2
82 714 сом/м2
Срочно продается дом Ж/м Ак ордо 3 Участок 4 сотых Имеется красная книга Дом кирпичный, можно поднять мансарду Без мебели и техникой Вариант: обмен на квартиру! Цена: 7 420 500 сом( 85000 $) Телефон: 0707-99-34-99 Айданбек Кыргыз Недвижимость ID: 71213
17 часов назад  927  10

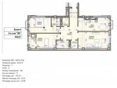
3-комн. кв., 102.57 м2, 6 этаж из 14

ЖК "Nova City" Нова Сити

Бишкек, Горького - Алма-Атинская, Горького
$ 133 500
11 691 930 сом
$ 1 302/м2
113 990 сом/м2
🏢 Продаётся квартира в ЖК Нова Сити Застройщик: Элит Хаус Этаж: 6/12 Площадь: 102.57 м² Сданный блок: Блок: 4 💰 Цена: 133500$$ 📞 Телефон для связи: [ваш номер] ID: 65478
17 часов назад  431

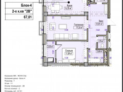
2-комн. кв., 67.1 м2, 11 этаж из 12

ЖК "Nova City" Нова Сити

Бишкек, Горького - Алма-Атинская, Горького
$ 87 200
7 636 976 сом
$ 1 300/м2
113 815 сом/м2
🏢 Продаётся 2 ком квартира в ЖК Нова Сити Застройщик: Элит Хаус Этаж: 11/12 Площадь: 67,01 м² Сданный блок Блок: 4 💰 Цена: 87 200$$$ 📞 Телефон для связи: ID: 65486
17 часов назад  458

4-комн. кв., 121 м2, 6 этаж из 12

ЖК New City

Бишкек, Магистраль, ул. Куттубаева, 15
$ 104 000
9 108 320 сом
$ 860/м2
75 275 сом/м2
Продается 4-комнатная квартира в элитном ЖК "New city" 📍 Район:Асанбай 🏗 Застройщик: Elite House 📐 Площадь: 120.61² 🏢 Этаж: 6 из 14 🛠 Срок сдачи: 2027г конец стадия 7го этажа 🔥 Коммуникации: центральные Отопление газовое 📄 Документы все чистые 💰 Срочная цена: 104.000$
17 часов назад  270

1-комн. кв., 38 м2, 6 этаж из 11

Асанбай Ордо

Бишкек, Магистраль, Аалы Токомбаева 9/6
$ 66 000
5 780 280 сом
$ 1 737/м2
152 113 сом/м2
Продаётся квартира в ЖК «Флоренция» — одном из лучших комплексов города! 📍 Рядом парк, сад, школа, кофейни, магазины. 🏡 Закрытый охраняемый двор, фейс-айди, 2 детские площадки. Состояние: Лайтбокс Этаж 6/12 Площадь 39 м² Центральные коммуникации, газ, автономное отопление. Мебель и техника ...
17 часов назад  1013  11

1-комн. кв., 54.6 м2, 5 этаж из 16

Крейсер

Бишкек, Магистраль, Байтик Баатыра/Токомбаева
$ 73 700
6 454 646 сом
$ 1 350/м2
118 217 сом/м2
Срочно продаётся! 1-комнатная квартира в мкр. Асанбай ЖК «Крейсер» от СК «Эмарк» • Этаж: 5 из 16 • Блок А • Площадь: 54,6 м² • Состояние: сдан ПСО • Окна выходят в сторону ул. Советской • Развивающаяся инфраструктура, удобное расположение Цена: 73700 $ Кыргыз недвижимость! ID: 764...
17 часов назад  157

2-комн. кв., 72.57 м2, 11 этаж из 14

ЖК New City

Бишкек, Магистраль, Куттубаева/Южная Магистраль
$ 69 000
6 043 020 сом
$ 951/м2
83 272 сом/м2
Продам 2к квартиру жк Нью сити Строительная компания Элит Хаус Площадь 72,57м2 Этаж 11/14 Стадия 3го этажа Сдача ПСО 2027год Цена 69.000$ Можно 52000$ заплатить сейчас Остальные в рассрочку на 2года ID: 72660
17 часов назад  251  1